|
|
|

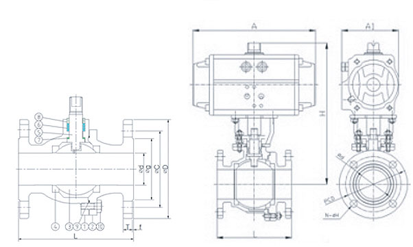
Ball Valve Material
| HS 300# / 600 # Part List | |||
|---|---|---|---|
| No | Part Name | Material | Q'ty |
| 1,2 | Body | A216WCB | 1 |
| 3 | Ball | A351-CF8 | 1 |
| 4 | Seat Ring | RTFE | 2 |
| 5 | Stem | A276-304 | 1 |
| 6 | V-Packing | PTFE | 1Set |
| 7 | Back Packing | PTFE | 1 |
| 8 | Gland | A276-304 | 1 |
| 9 | Gasket | PTFE | 1 |
| 10 | Hex Bolt | SCM435 | 1Set |
| HWC | HWC 150# Part List | ||
| 1,2 | Body | SCSI 3 (CF8) | 1 |
| Ball | SUS304 | 1 | |
| 4 | Seat Ring | PTFE(Teflon) | 2 |
| Size | 150#(10K) | 300#(20K) | 600#(40K) | |||||||||||||
|---|---|---|---|---|---|---|---|---|---|---|---|---|---|---|---|---|
| ㎜ | In | L | g | C | D | T | L | g | C | D | T | L | g | C | D | T |
| 25 | 1" | 127 | 50.8 | 79.4 | 110 | 9.6 | 165 | 50.8 | 88.9 | 125 | 15.9 | |||||
| 40 | 1.5" | 165 | 73 | 98.4 | 125 | 12.7 | 190 | 73 | 114.3 | 155 | 19.1 | 241 | 73 | 114.3 | 155 | 22.3 |
| 50 | 2" | 178 | 92.1 | 120.7 | 150 | 14.3 | 216 | 92.1 | 127 | 165 | 20.7 | 292 | 92.1 | 127 | 165 | 25.4 |
| 80 | 3" | 203 | 127 | 152.4 | 190 | 17.5 | 282 | 127 | 168.3 | 210 | 27 | 356 | 127 | 168.3 | 210 | 31.8 |
| 100 | 4" | 229 | 157.2 | 190.5 | 230 | 22.3 | 305 | 157.2 | 200 | 255 | 30.2 | 432 | 157.2 | 215.9 | 275 | 38.1 |
| 125 | 5" | 356 | 185.7 | 215.9 | 255 | 22.3 | 381 | 185.7 | 235 | 280 | 33.4 | |||||
| 150 | 6" | 394 | 215.9 | 241.3 | 280 | 23.9 | 483 | 215.9 | 269.9 | 320 | 35 | 559 | 215.9 | 292.1 | 355 | 44.5 |
| 200 | 8" | 457 | 269.9 | 298.5 | 345 | 27 | 502 | 269.9 | 330.2 | 380 | 39.7 | 660 | 269.9 | 349.2 | 420 | 55.6 |
| 250 | 10" | 533 | 323.8 | 362 | 405 | 28.6 | 568 | 323.8 | 387.4 | 445 | 46.1 | 787 | 323.8 | 431.8 | 510 | 63.5 |
| 300 | 12" | 610 | 381 | 431.8 | 485 | 30.2 | 648 | 381 | 450.8 | 520 | 49.3 | 838 | 381 | 489 | 560 | 66.7 |
| 1.5"~12" | f = 2㎜ | f = 2㎜ | f = 7㎜ | |||||||||||||
|
|
| Size | ∮d | L | H1 | H2 | H3 | K | PCD | ∮Q | Torque N.m | |
|---|---|---|---|---|---|---|---|---|---|---|
| Inch | ㎜ | |||||||||
| 3/4" | 20 | 28 | 33 | 50 | 116 | 35 | 9 | F07 | 10 | 12 |
| 1" | 25 | 28 | 33 | 50 | 116 | 35 | 9 | F07 | 10 | 12 |
| 1-1/4" | 32 | 37 | 33 | 63 | 121 | 35 | 9 | F07 | 10 | 12 |
| 1-1/2" | 40 | 37 | 33 | 63 | 121 | 35 | 9 | F07 | 10 | 12 |
| 2" | 50 | 49 | 43 | 83 | 123 | 35 | 11 | F07 | 10 | 13 |
| 2-1/2" | 65 | 62 | 47 | 94 | 144 | 35 | 11 | F07 | 10 | 23 |
| 3" | 80 | 73 | 48 | 102 | 154 | 35 | 11 | F07 | 10 | 32 |
| 4" | 100 | 95 | 54 | 117 | 174 | 35 | 11 | F07 | 10 | 51 |
| 5" | 125 | 122 | 57 | 135 | 193 | 35 | 14 | F07 | 10 | 85 |
| 6" | 150 | 141 | 57 | 155 | 213 | 35 | 17 | F07 | 10 | 124 |
| 8" | 200 | 194 | 64 | 197 | 250 | 50 | 22 | F10 | 12 | 199 |
| 10" | 250 | 238 | 72 | 228 | 275 | 50 | 22 | F12 | 12 | 307 |
| 12" | 300 | 278 | 81 | 260 | 260 | 50 | 27 | F12 | 17 | 425 |
| Size | ∮d | L | H1 | H2 | H3 | K | PCD | ∮Q | Torque N.m | |
|---|---|---|---|---|---|---|---|---|---|---|
| Inch | ㎜ | |||||||||
| 3/4" | 20 | 28 | 33 | 50 | 116 | 35 | 9 | F07 | 10 | 24 |
| 1" | 25 | 28 | 33 | 50 | 116 | 35 | 9 | F07 | 10 | 24 |
| 1-1/4" | 32 | 37 | 33 | 63 | 121 | 35 | 9 | F07 | 10 | 24 |
| 1-1/2" | 40 | 37 | 33 | 63 | 116 | 35 | 9 | F07 | 10 | 24 |
| 2" | 50 | 49 | 43 | 83 | 123 | 35 | 11 | F07 | 10 | 27 |
| 2-1/2" | 65 | 62 | 47 | 94 | 144 | 35 | 11 | F07 | 10 | 50 |
| 3" | 80 | 73 | 48 | 102 | 154 | 35 | 11 | F07 | 10 | 72 |
| 4" | 100 | 95 | 54 | 117 | 174 | 35 | 11 | F07 | 10 | 89 |
| 5" | 125 | 122 | 57 | 135 | 193 | 35 | 14 | F07 | 10 | 141 |
| 6" | 150 | 141 | 59 | 155 | 213 | 35 | 17 | F07 | 10 | 280 |
| 8" | 200 | 194 | 73 | 210 | 250 | 50 | 22 | F10 | 12 | 486 |
| 10" | 250 | 235 | 83 | 240 | 280 | 50 | 22 | F12 | 12 | 684 |
| 12" | 300 | 276 | 92 | 270 | 320 | 50 | 27 | F12 | 17 | 948 |